AKTUELLES
BAUVORHABEN
Gerne präsentieren wir Ihnen folgend einige der in Arbeit befindlichen Projekte. Bitte haben Sie Verständnis dafür, dass wir leider nicht alle aktuellen Maßnahmen darstellen können.
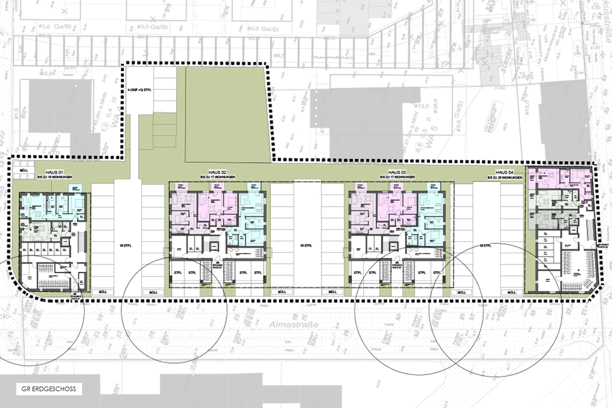
Geschosswohnungsbau
Neubau von 3 energieoptimierten Geschosswohnbauten
LP 1-4 – Bernau bei Berlin Brandenburg
Wohnquartier
Entwurf eines Wohnquartiers
LP 2 – Haan NRW
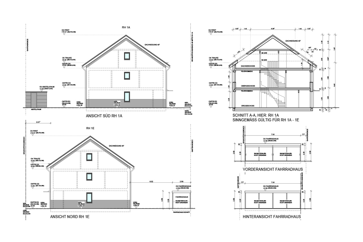
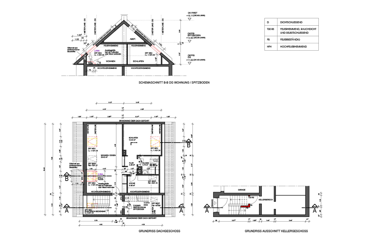
REIHENHAUSSIEDLUNG
Neubau einer Wohnanlage mit 4 Doppelhaushälften und 22 Reihenhäusern
LP 1-4 – Solingen NRW
Bestandsgebäude
Nutzungsänderung eines Abstellraums zu einer Wohnung
LP 1-4 – Wuppertal NRW
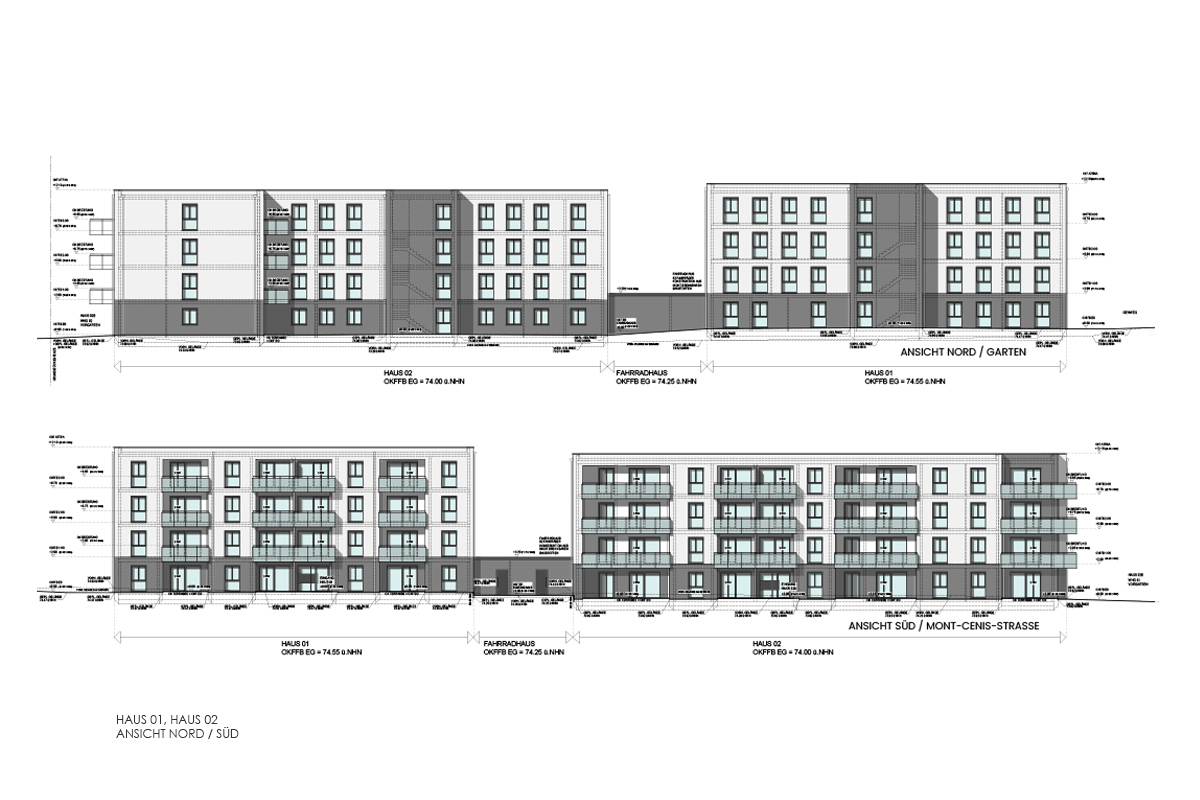
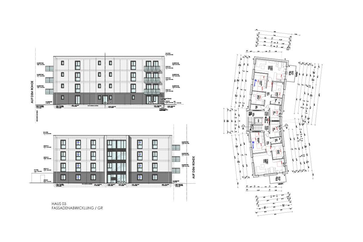
Geförderter Wohnungsbau
Neubau von 5 Geschosswohnbauten und einer Tiefgarage im geförderten Wohnungsbau
LP 1-5 – Bernau bei Berlin Brandenburg
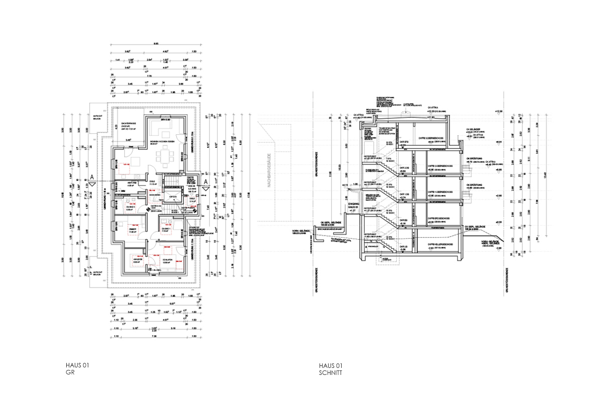
Doppelhaus
Neubau eines bungalowartigen Doppelhauses
LP 1-4 – Remscheid NRW
GESCHOSSWOHNungsBAU
Neubau von 3 Geschosswohnbauten
LP 1-4 – Solingen NRW
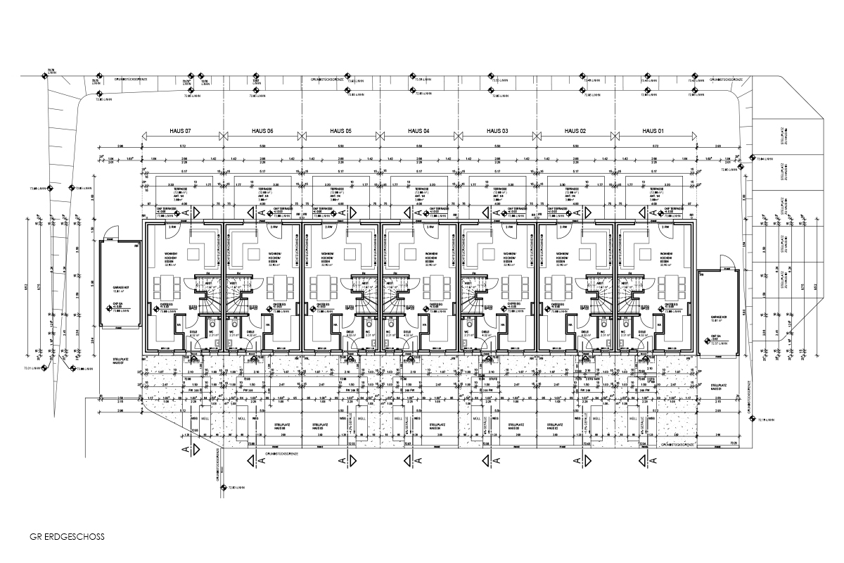
Reihenhäuser
Neubau von 14 Reihenhäusern
LP 1-4 – Recklinghausen NRW
Geschosswohnungsbau
Entwurfsvarianten für den Neubau mehrerer Geschosswohnbauten
LP 1-2 – Schönefeld Brandenburg
Wohnquartier
Entwurf für ein Wohnquartier
LP 2 – Münster NRW
Geschosswohnungsbau
Neubau von 3 Geschosswohnbauten
LP 1-4 – Herne NRW
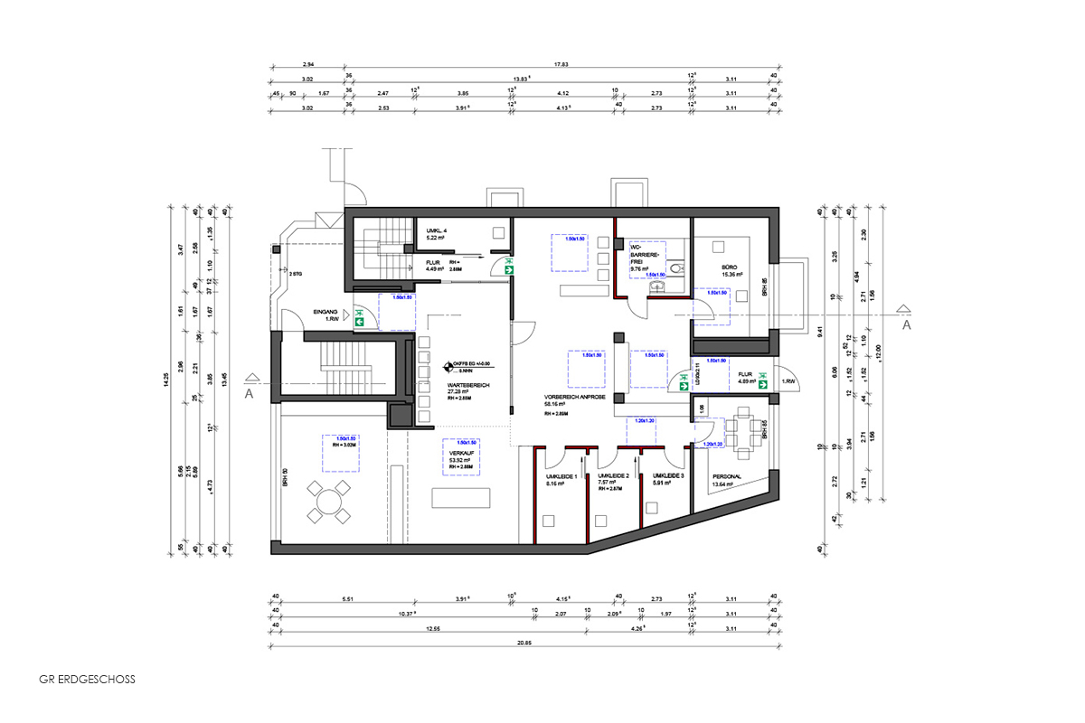
Sanitätshaus
Nutzungsänderung einer ehem. Bankfiliale in ein Sanitätshaus
LP 1-4 – Velbert NRW
Gesamtschule
Umbau und Erweiterung einer Gesamtschule
LP 1-5 anteilig – Düsseldorf NRW
Bestandsgebäude
Entwurf für eine Nutzungsänderung einer ehem. Fabrik in ein Wohngebäude
LP 1-2 – Solingen NRW
Eigentumswohnungen
Neubau von 4 Geschosswohnbauten und zwei Tiefgaragen
LP 5 – Velbert NRW
Gymnasium
Planung einer Schulerweiterung an einem Gymnasium
LP 1-2 anteilig – Remscheid NRW
Jugendheim
Umbau und Nutzungsänderung eines Wohnhauses mit Scheune in ein Jugendheim
LP 1-8 – bhp Architekten mit Subunternehmen MB Planwerk GmbH – Wermelskirchen NRW
Mehrfamilienwohnhaus
Neubau eines Geschosswohnbaus
LP 1-4 anteilig – Solingen NRW
Geschosswohnungsbau
Entwurf für den Neubau von 4 Geschosswohnbauten
LP 1-2 – Duisburg NRW
Geschosswohnungsbau
Neubau eines Geschosswohnbaus
LP 1-4 – Hannover Niedersachsen
Standort
MB Planwerk GmbH
Burgstraße 15
42655 Solingen
Internet & E-Mail
www.mb-planwerk.de
info@mb-planwerk.de
Telefon & Öffnung
0212 – 23067710
Mo.-Do.: 09:00 – 17:00 Uhr
Fr.: 09:00 – 13:00 Uhr


































































